Skip to main content

MILL ROAD

52°11'50.0"N 0°08'56.7"E

MILL ROAD

Elevation / Section

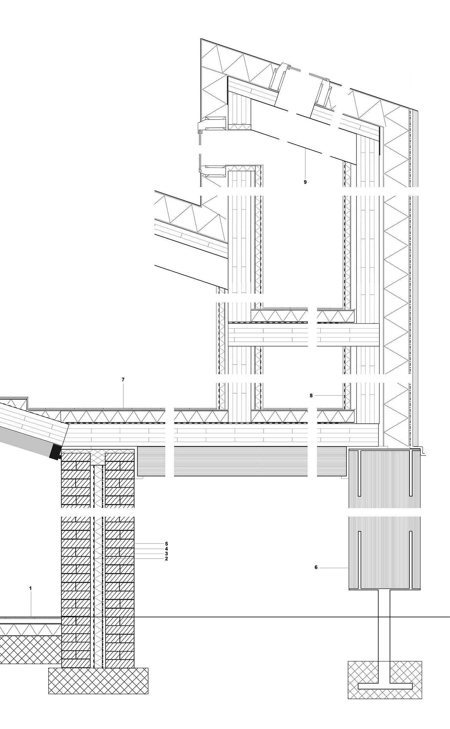
  • 1

    Timber parquet 10 mm
    Adhesive layer
    Vibration absorption mat 30 mm
    Damp-proof membrane
    insulation 80 mm
    Reinforced concrete 200 mm

  • 2

    Vapour barrier

  • 3

    Wood fibre insulation 60 mm

  • 4

    Breather membrane

  • 5

    Brick

  • 6

    Glulam, 200 mm isolated from the ground with a stainless steel bar.

  • 7

    Timber parquet 10 mm
    Adhesive layer
    Vibration absorption mat 30 mm
    Wood fibre insulation 50 mm
    Aluminium foil vapour barrier
    Cross laminated timber (CLT) 160 mm

  • 8

    Plasterboard 5 mm
    Vapour barrier
    Wool insulation 40 mm
    Timber sheathing board 9 mm
    Air cavity 40 mm
    Cross laminated timber (CLT) 160 mm
    Air cavity 40 mm
    Oriented strand board (OSB) 9 mm
    Wool insulation 180 mm
    Oriented strand board (OSB) 9 mm
    Breather membrane
    Air cavity 20 mm
    Timber cladding 40 mm

  • 9

    Steel beam 200 mm
    Cross laminated timber (CLT) 192 mm
    Vapour barrier
    Oriented strand board (OSB) 9 mm (sheathing)
    Wool insulation 180 mm
    Oriented strand board (OSB) 9 mm
    Cor-ten steel